Перейти к содержимому

Кухня-гостиная боковая, терраса задняя 100 м²

Строим место,
в котором хочется жить.

Основные характеристики дома

  • Гостиная с открытой кухней
  • Мастер-спальня с гардеробной
  • Две дополнительные спальни
  • Отдельный кабинет
  • Кладовая рядом с кухней
  • Две ванные комнаты

Стоимость проекта:

от 700 BYN

Стоимость строительства:

от 175 000 BYN ≈50 000 USD
В рассрочку от 3 000 BYN в месяц
Кратко о доме

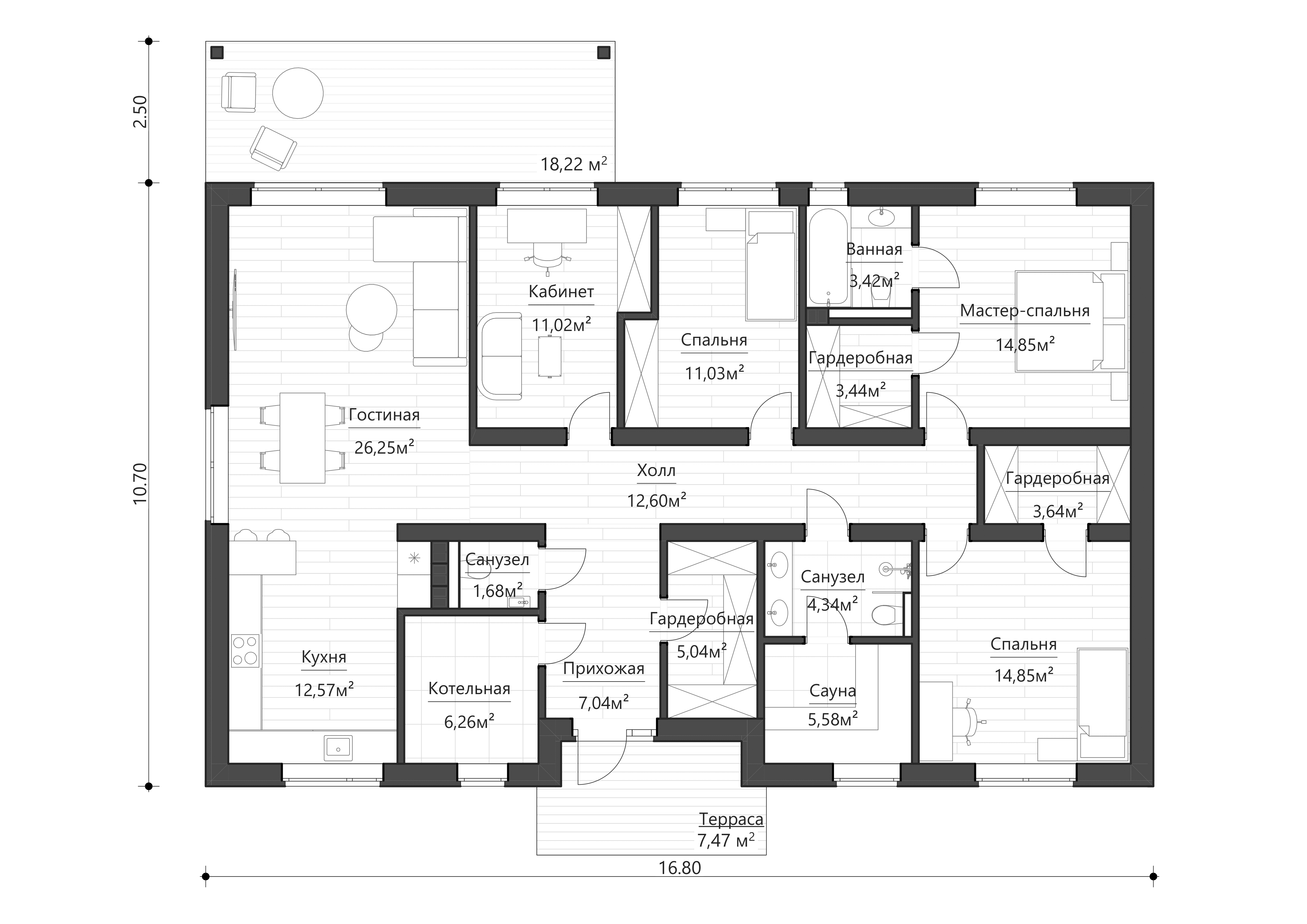
Простой и эстетичный дом отлично подойдет для постоянного проживания семьи из 3-4 человек.

Дом разделен на две функциональные зоны: с левой стороны от входа находится просторная кухня-гостиная с выходом на террасу, справа - спальни, в которых предусмотрены места для работы и учебы, а также встроенные шкафы для хранения вещей.

В доме располагается сауна, несколько санузлов и котельная с достаточной площадью для расположения всего необходимого оборудования.

Просторная кухня-гостиная с возможностью предусмотреть камин и крытая терраса позволит провести множество прекрасных вечеров в компании близких вам людей.

Кухня-гостиная боковая, терраса задняя 100 м²

График строительства Вашего дома согласно нашему проекту

Фундамент + закрытый контур

  • Фундамент 
  • Стены Кереамзитобетон 400мм
  • Кровля металопрофиль
  • Теплое перекрытие 250мм — керамзитом 
  • Окна и временная дверь 
Теплый закрытый контур

Фундамент + закрытый контур +

  • Черновая электрика
  • Оштукатуренные стены
  • Смонтирована плитки в котельной 
  • Разведено отопление, водоснабжение, канализация
  • Чистовая стяжка
  • Утеплен и в «черновую» отделан фасад
  • Теплая отмостка 
Чистовая отделка внутри и снаружи

Фундамент + закрытый контур +

Теплый закрытый контур +

Стоимость указана "от" и рассчитывается индивидуально.

Фундамент + закрытый контур
Фундамент + закрытый контур

  • Фундамент 
  • Стены Кереамзитобетон 400мм
  • Кровля металопрофиль
  • Теплое перекрытие 250мм — керамзитом 
  • Окна и временная дверь 
Теплый закрытый контур
Теплый закрытый контур

Фундамент + закрытый контур +

  • Черновая электрика
  • Оштукатуренные стены
  • Смонтирована плитки в котельной 
  • Разведено отопление, водоснабжение, канализация
  • Чистовая стяжка
  • Утеплен и в «черновую» отделан фасад
  • Теплая отмостка 
Чистовая отделка внутри и снаружи
Чистовая отделка внутри и снаружи

Фундамент + закрытый контур +

Теплый закрытый контур +

Стоимость указана "от" и рассчитывается индивидуально.

Энергоэффективность

Совместив строительный и проектный опыт — мы достигаем минимального уровня теплопотерь без доп затрат — что экономит средства на их возмещение.

Безопасность

Мы применяем только безопасные решения проектируя все конструкции, особенное внимание к фундаменту, кровле, электрике, системе отопления и водоснабжения.

Комфорт, уют и функциональность

Мы передали свое видение одного из стилей жизни
на небольшой площади. Ведь не площадь важна, а атмосфера в доме.

Заказать проект

  • 700 BYN
    Архитектурный проект
    Кухня-гостиная боковая, терраса задняя 100 м²
  • + 1 400 BYN
    Строительный проект

    Содержит детальную информацию о технологии и этапах строительства дома. Состоит из конструктивных чертежей, узлов и деталей, ведомостей и спецификаций материалов для закупки.

    Строительный проект
  • + 600 BYN
    Проект инженерных сетей
    • Системы водоснабжения и канализации
    • Схема разводки водоснабжения и канализации.
    • Схемы отопления и вентиляции
    • Схема разводки отопления, вентиляции, обвязка котла.
    Проект инженерных сетей
  • + 500 BYN
    Генеральный план

    Генеральный план строений включает схематические обозначения входов и подъездов, компоненты благоустройства, озеленения, транспортных путей, путей проходов.

    Генеральный план
  • + 2 000 BYN
    Типовой дизайн

    Типовой дизайн проект дома позволяет  оптимизировать денежные средства, и предусмотреть заранее все функциональные и технические особенности планировки вашего строения.

    Типовой дизайн
  • + 8 000 BYN
    Индивидуальный дизайн

    Концепция будущего интерьера с подробной технической информацией по его реализации, в соответствии с индивидуальными требованиями клиента.

    Индивидуальный дизайн

Дом разделен на две функциональные зоны: с левой стороны от входа находится просторная кухня-гостиная с выходом на террасу, справа - спальни, в которых предусмотрены места для работы и учебы, а также встроенные шкафы для хранения вещей.

В доме располагается сауна, несколько санузлов и котельная с достаточной площадью для расположения всего необходимого оборудования.

Просторная кухня-гостиная с возможностью предусмотреть камин и крытая терраса позволит провести множество прекрасных вечеров в компании близких вам людей.

Дом исполнен в трех площадях: 100,07 м2, 121,40 м2 и 141,93 м2.