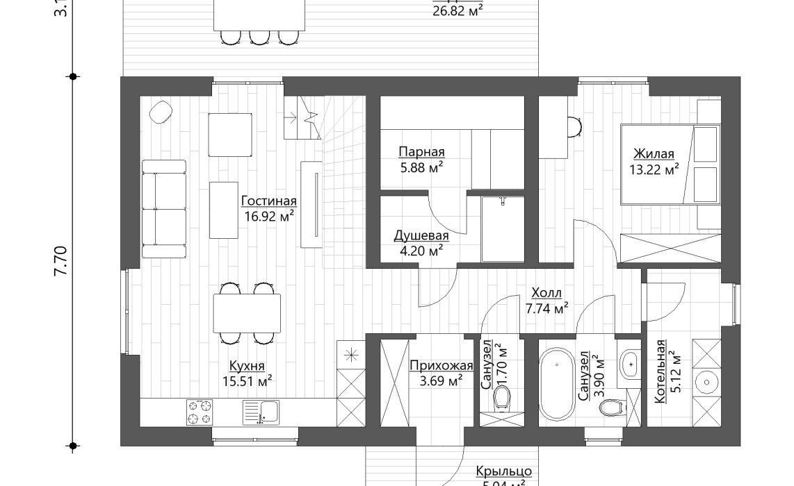
милый дом 2 этажа 3, баня, 3 спальни 141м2
Основные характеристики дома
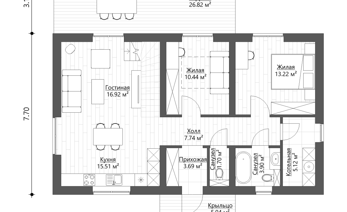
- Гостиная с открытой кухней
- Мастер-спальня с гардеробной
- Две дополнительные спальни
- Отдельный кабинет
- Кладовая рядом с кухней
- Две ванные комнаты
Стоимость проекта:
от 700 BYN
Стоимость строительства:
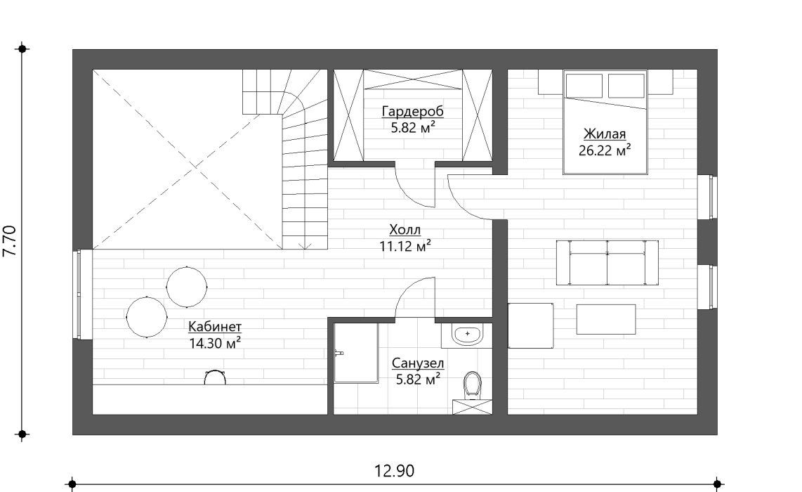
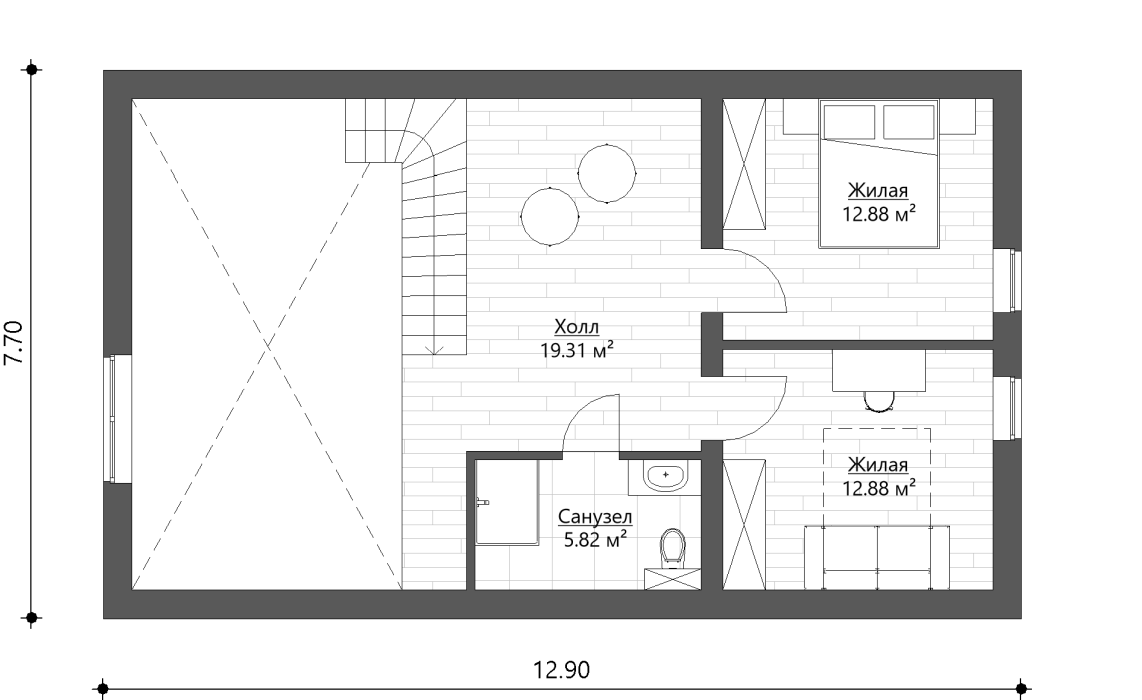
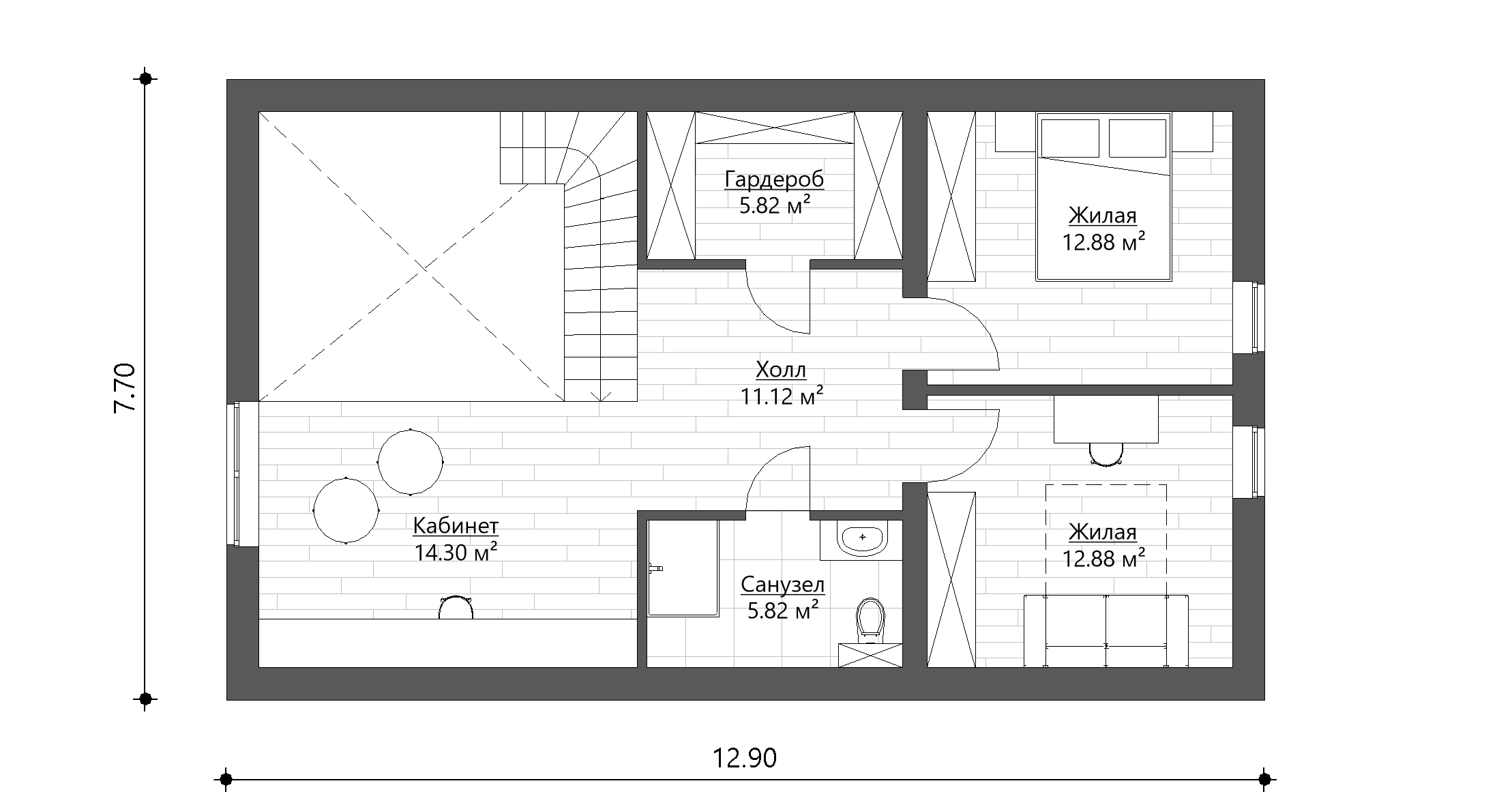
Планировка
Варианты планировочных решений
- милый дом 2 этажа 1 129м2 (терр,баня,2спальни)
- милый дом 2 этажа 1 129м2 (терр,баня,2спальни)
- милый дом 2 этажа 2 129м2 (терр и 3 спальни)
- милый дом 2 этажа 2 129м2 (терр и 3 спальни)
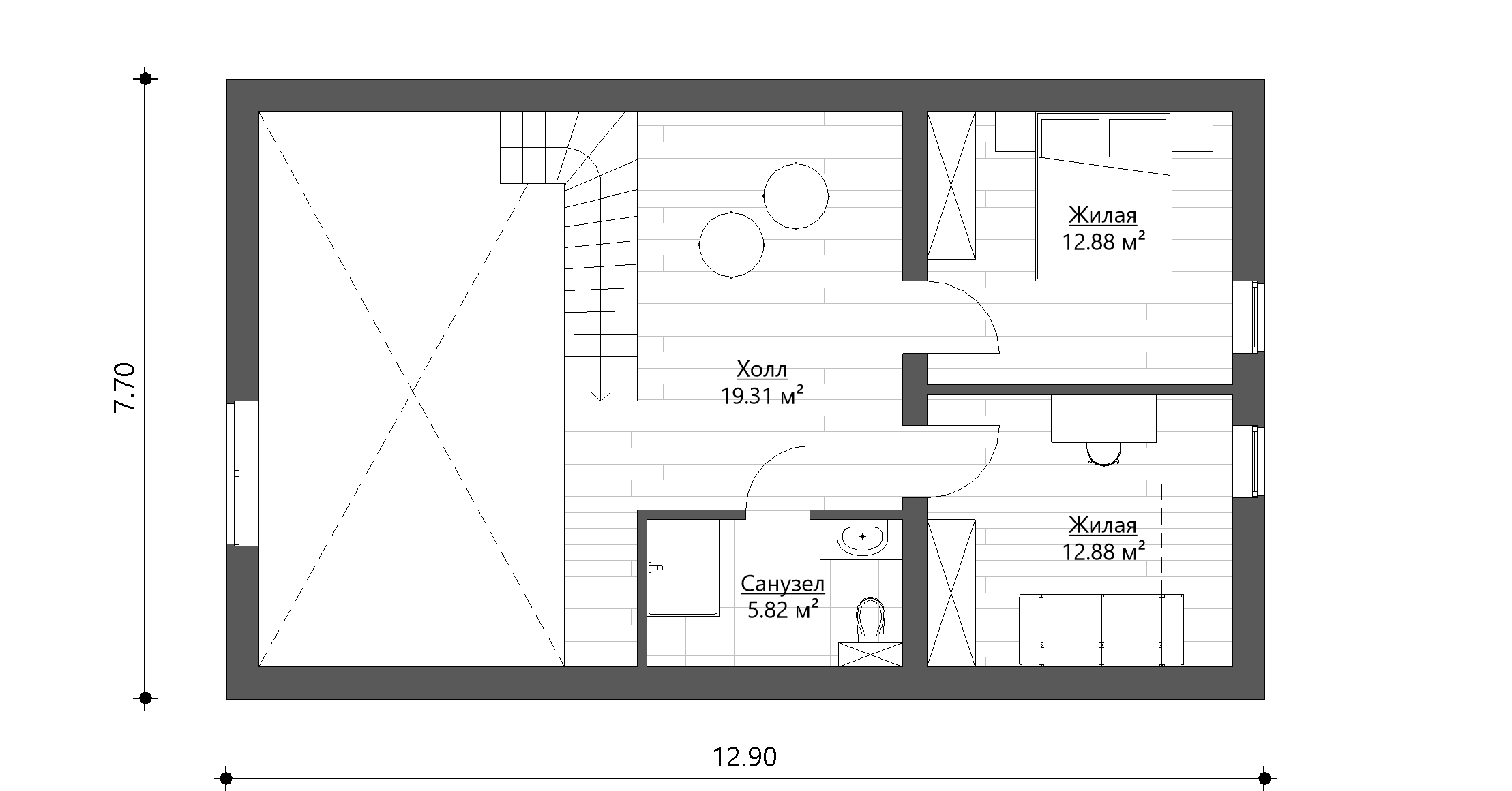
- милый дом 2 этажа 3 (бани и 3 спальни)
- милый дом 2 этажа 3 (бани и 3 спальни)
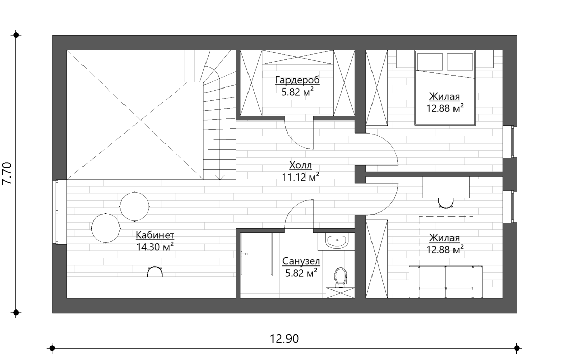
- милый дом 2 этажа 4 (2сп + на 2 эт мастер-сп)
- милый дом 2 этажа 4 (2сп + на 2 эт мастер-сп)
Совместив строительный и проектный опыт — мы достигаем минимального уровня теплопотерь без доп затрат — что экономит средства на их возмещение.
Мы применяем только безопасные решения проектируя все конструкции, особенное внимание к фундаменту, кровле, электрике, системе отопления и водоснабжения.
Мы передали свое видение одного из стилей жизни
на небольшой площади. Ведь не площадь важна, а атмосфера в доме.
Заказать проект
-
Архитектурный проект0700 BYN
-
Строительный проект0+ 1 400 BYN
Содержит детальную информацию о технологии и этапах строительства дома. Состоит из конструктивных чертежей, узлов и деталей, ведомостей и спецификаций материалов для закупки.
-
Проект инженерных сетей0+ 600 BYN
- Системы водоснабжения и канализации
- Схема разводки водоснабжения и канализации.
- Схемы отопления и вентиляции
- Схема разводки отопления, вентиляции, обвязка котла.
-
Генеральный план0+ 500 BYN
Генеральный план строений включает схематические обозначения входов и подъездов, компоненты благоустройства, озеленения, транспортных путей, путей проходов.
-
Типовой дизайн0+ 2 000 BYN
Типовой дизайн проект дома позволяет оптимизировать денежные средства, и предусмотреть заранее все функциональные и технические особенности планировки вашего строения.
-
Индивидуальный дизайн0+ 8 000 BYN
Концепция будущего интерьера с подробной технической информацией по его реализации, в соответствии с индивидуальными требованиями клиента.
Описание услуги
Описание услуги
Описание услуги
наши специалисты помогут создать уникальный проект
по вашим пожеланиям