Перейти к содержимому

Ноунейм Пазл Хаус 93, крыша скатная

Строим место,
в котором хочется жить.

Основные характеристики дома

Стоимость проекта:

от 700 BYN

Стоимость строительства:

от 140 000 BYN ≈40 000 USD
В рассрочку от 3 000 BYN в месяц

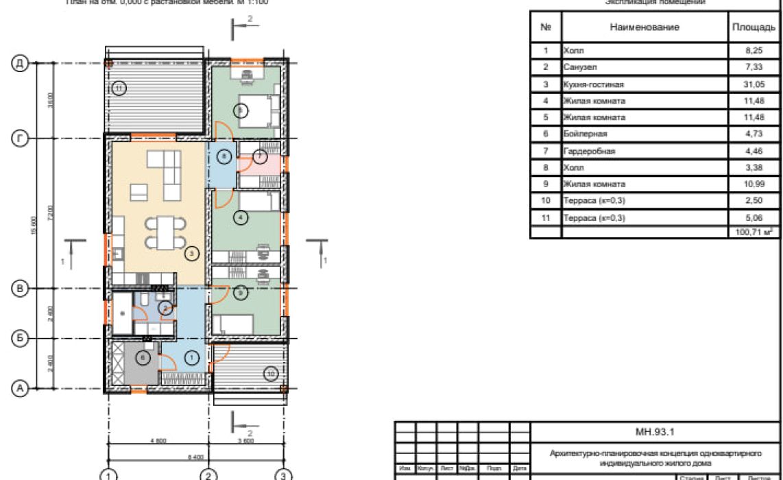
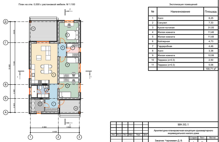
Планировка

Энергоэффективность

Совместив строительный и проектный опыт — мы достигаем минимального уровня теплопотерь без доп затрат — что экономит средства на их возмещение.

Безопасность

Мы применяем только безопасные решения проектируя все конструкции, особенное внимание к фундаменту, кровле, электрике, системе отопления и водоснабжения.

Комфорт, уют и функциональность

Мы передали свое видение одного из стилей жизни
на небольшой площади. Ведь не площадь важна, а атмосфера в доме.

Заказать проект

  • 700 BYN
    Архитектурный проект
    Ноунейм Пазл Хаус 93, крыша скатная
  • + 1 400 BYN
    Строительный проект

    Содержит детальную информацию о технологии и этапах строительства дома. Состоит из конструктивных чертежей, узлов и деталей, ведомостей и спецификаций материалов для закупки.

    Строительный проект
  • + 600 BYN
    Проект инженерных сетей
    • Системы водоснабжения и канализации
    • Схема разводки водоснабжения и канализации.
    • Схемы отопления и вентиляции
    • Схема разводки отопления, вентиляции, обвязка котла.
    Проект инженерных сетей
  • + 500 BYN
    Генеральный план

    Генеральный план строений включает схематические обозначения входов и подъездов, компоненты благоустройства, озеленения, транспортных путей, путей проходов.

    Генеральный план
  • + 2 000 BYN
    Типовой дизайн

    Типовой дизайн проект дома позволяет  оптимизировать денежные средства, и предусмотреть заранее все функциональные и технические особенности планировки вашего строения.

    Типовой дизайн
  • + 8 000 BYN
    Индивидуальный дизайн

    Концепция будущего интерьера с подробной технической информацией по его реализации, в соответствии с индивидуальными требованиями клиента.

    Индивидуальный дизайн